标题: 01 新西行漫记2011——贵州大方县猫场镇大石头小学
gsjczzm (周老师)
新手上路
Rank: 1



UID 14
精华 0
积分 0
帖子 641
阅读权限 10
注册 2007-4-5
状态 离线
发表于 2011-7-11 15:22  资料 短消息 
01 新西行漫记2011——贵州大方县猫场镇大石头小学

新西行漫记2011——贵州大方县猫场镇大石头小学

    近些天在贵州大方县猫场镇走访,组织这里的几所村校参加信天助学“庆六一百猪宴”活动(这次活动将在云贵川三省贫困山区为36000多孩子提供一次节日宴会,让他们过一个愉快的节日——淘宝网友和爱心人士捐助资金),多次到了大石头小学,看到的情况让人心悸……



    学生身后的墙已经松动的好像一下子就可以推倒,小学生的小手可以从缝隙中伸出去……



    这个小学目前有106个学生,只有李有华老师一人复式教学(六个年级的课程都是他一人讲授)。村支书介绍,学校房子年久失修,已经是危房,已经难以保证学生安全,如果学校能够有好一点的房子和够用的教师,这个学校应该有200个左右的学生(400户左右居民)


    李有华老师在上课

    这个小学位于离开镇政府所在地15公里的石山中,可以乘摩托车由一条土路到达那里(近一两年刚修通的)。土地贫瘠,这里无公办小学,只有一座20年前由毕节市教育局出资6500元所建一座平顶房作为学校,一直由一位叫李有华的农民支撑着(期间曾两次派公办教师来这里,但都没有留下)……



    不多说了,我们看一看我在这里拍的一些照片吧:












































































不便的交通,贫瘠的土地……





     李老师在这条山路上已经走了20多年……

    问到他:“为什么坚持20多年在这里教书,而没有出去打工多挣些钱?”他只是一句:“那孩子们就没有书读了”



    我们前几天到过李有华老师的家,见到了他的父母(父亲81岁,土改时的生产队长,共产党员。母亲85岁,农民)住房是我们再那条山沟所见到的最差的,住的位置也是最偏远的一家。我们去的时候,已经是学生放学后,李老师正在山上玉米地里除草,我们是把他喊回家里的。感觉,这个老师实际是一个朴实的农民,不善言谈,已经四十多岁,两个孩子已经去外地打工(20多岁)






    村支书介绍:已经多次向上面申请重新建校,而上面根本没有重新建校的意愿,甚至答复:“让学生到中心校读好了……”而我了解到的情况是:中心校根本没有住宿条件,没有一个住宿学生,让大山里的孩子走十多公里山路每天走读去镇中心校读书根本是不可能的事情……




    我已经请村委会做了重新修建这个小学的规划和预算,准备找一个合适的位置重新建三间教室和一间教师办公兼宿舍用房(为外来的教师提供住宿条件——中心校答应下个学期给这里增派一位教师),附属有围墙、校门、国旗台、厕所及250平米的操场,初步预算需要12万元左右……

[ 本帖最后由 gsjczzm 于 2011-9-25 22:48 编辑 ]




我们都来做一点吧
顶部
gsjczzm (周老师)
新手上路
Rank: 1



UID 14
精华 0
积分 0
帖子 641
阅读权限 10
注册 2007-4-5
状态 离线
发表于 2011-7-11 15:24  资料 短消息 
这次同捐款人来大方猫场,镇政府和中心校的领导同我们一起再次到大石头村民组,现场研究建校方案,村干已经重新选定了条件更好的校址,新校址选在紧靠通村公路的山谷里,交通便利多了,可以降低建校的运输成本,并有了将来一旦学生人数增加需要增加设施的发展空间。


捐款人郑先生和志愿者在贵阳会合前往大方猫场


在猫场乘车经通村公路前往大石头村组











村民们关心重建村小



同村干一起再次研究建校方案

重新选定的新校址位置


图片附件: 大石头小学平面草图修改1.JPG (2011-7-14 09:14, 76.13 K)



图片附件: 建厕所建议图1.JPG (2011-7-14 09:30, 103.57 K)





我们都来做一点吧
顶部
gsjczzm (周老师)
新手上路
Rank: 1



UID 14
精华 0
积分 0
帖子 641
阅读权限 10
注册 2007-4-5
状态 离线
发表于 2011-7-14 07:23  资料 短消息 
已经做好大石头小学预算初稿。请帮助核对一下是否存在计算错误。

----------------------------------------------------------------------------------------------------
大石头小学修建预算草案

一、修建项目:

  1、主体建筑——含3间教室和一间教师用房  教室 5米x7米x3间    教师用房 5米x3.5米x1间

                 砖混结构(上下圈梁、构造柱、现浇屋顶,雨檐宽度0.8米)  室内净高度不低于3.5米

                 墙体用圆孔空心水泥砖砌筑  厚度20  内外抹灰涂白涂料  室内地面硬化厚度100

                 教室 2门4窗  窗为1800x1800   铝合金窗

                 教师用房  1门2窗

                 建筑面积 142.2平米    (10.5+14)x(5+0.8)

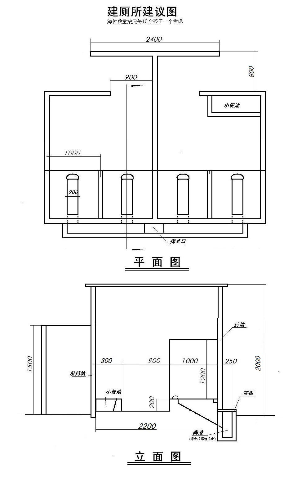
  2、厕所  男女各4个蹲位  墙体用圆孔空心水泥砖砌筑  厚度20  内外抹灰涂白涂料  现浇屋顶

                 具体见厕所参考图

                 建筑面积 20.8平米

  3、操场、围墙、校门、国旗台等  围墙墙高1.5米用水泥砖砌筑 双面抹灰 基础为毛石300x500

     校门围墙距通村公路10米以上  同公路间挖排水通道

  3、通水、电,每间教室前后均配置黑板、50套双人课桌椅

二、主要材料及人工费用:

    建校资金为民间捐款,需节俭珍惜使用,避免浪费,建校施工由村委会组织,非技术人员尽可能使用本村劳力

    村委会需要组织村民做部分无偿投工投劳投料,用于平整场地、挖排水沟、石砌围墙基础等力所能及的辅助工程,

    体现“我们自己建学校”的精神,为自己的孩子创造一个较好的学习环境。

    圆孔空心水泥砖:    采购地点   猫场镇  采购价  元/块  到场价  3.2元/块

    水泥425#:  采购地点   猫场水泥厂   采购价  360元/吨  到场价  420元/吨

    钢筋: 采购地点   猫场镇  采购价   Φ8      到场价  5200元/吨
                                       Φ16     到场价  80元/根
                                       Φ20     到场价  110元/根

    混凝土(相当于C30砼)常规配合比   1立方混凝土 1.5方砂   8包水泥(0.4吨)

    地面硬化(相当于C15砼)常规配合比   1立方混凝土 1.5方砂   3包水泥(0.15吨)

    砂:       到场价  100元/方

    毛石:       到场价  100元/方

    碎石(公分石)      到场价  100元/方

    门窗:    门  7个  290元/个            窗  1.8mx1.8m  铝合金  150元/平米

      操场硬化  材料加人工  45元/平米(含材料运输费用)

  围墙砌筑 每延长米人工 50元/米(含毛石基础及墙体砌筑双面抹灰)  

    砖墙砌筑加内外抹灰用砂量0.075方/平米      水泥量0.9125吨/平米(每1000砖用砂约6方、水泥约1吨)

    人工费用  主体部分按照建筑单位面积计价  160元/平米 在基础完成后地面以上部分(地梁、圈梁、构造柱屋面浇筑,

    墙体砌筑,内外墙抹灰、涂料、门窗安装等)



三、分项预算

  1、教室及教师用房  建筑面积 142.2平米

  ①材料  砖  墙体面积=(24.5x2+5x6)x3.5-门窗面积(2x0.9x4+1.8x1.8x14)=276.5-52.56=223.94平米

              需用圆孔空心水泥砖=12.5x223.94=2800块  考虑到损耗 需购砖2900块   合计 9280元

          钢筋 站柱18根  Φ16  36根 (实际购买9米长/根)  

               地圈梁 总长79米  Φ16   37根(实际购买9米长/根)                  

               顶圈梁 总长79米  Φ16   37根(实际购买9米长/根)        共110根   计 8800元

               屋面板钢筋  Φ8  1300公斤   Φ6.5  200公斤   含全部圈梁站柱用箍筋  计 7800元

               抬担  3条  Φ20  15根  (上2下3)(实际购买9米长/根)             计 1650元

                                                                             钢筋合计 18250元

          水泥 24.5吨  砂石 160方   购水泥费用 10290元  购砂石费用 16000元       合计 26290元

              圈梁柱盖板混凝土体积 37方  按常规配比:1立方混凝土 0.5方砂  1方石  0.4吨(8包水泥)

                  需购  水泥 14.8吨    砂 18.5方    石子  37方

              室内地面、散水约169平米  厚度100mm  体积16.9方  内外墙抹灰约600平米  合6方  合计22.9方

                  常规配合比   1立方混凝土 1.5方砂石   3包水泥(0.15吨)(相当于C15砼)

                  需购  水泥 3.45吨   砂石 34.5方

              墙体砌筑190平米 砌筑砂浆  需购  水泥1.6吨  砂7.2方

              毛石混凝土基础(500×800)长度约79米:79×0.5×0.8=31.6方

                  需购  水泥4.5吨  毛石50方  砂10方

         门窗   门  7个  290元/个  合计 2030元

                窗  1.8mx1.8m  150元/平米   合计 6804元

          涂料  内墙磁粉 每平米5.5元  外墙乳胶漆 每平米11元  连工带料

                外墙面积 约270平米  费用2970元   内墙面积 约430平米  费用2365元    合计 5335元

          杂品  铁钉  铁丝                                                         约计  200元

          黑板  6块  300元/块                                                      合计 1800元

  ②人工  160x142.2=22752元

                                     本项工程总价  92741元    综合平米造价 为  652.19元/平米



  2、厕所  建筑面积 20.8平米  工料全包价  500元/平米         本项工程总价  10400元


  3、围墙  长54米 墙高1.5米 基础亦为圆孔空心水泥砖 基础一层圆孔空心水泥砖,墙体8层圆孔空心水泥砖

  ①材料  圆孔空心水泥砖  每米需圆孔空心水泥砖25块 需购砖1350块 购砖需 1350x3.2=4320元         

  ②人工砌筑抹灰及水泥砂石材料  50x54=2700元  内外抹灰面积约 162平米

  ③校门  铁管焊制铁栅门 校门1.8米x1.5米 价格约500元

                                                              本项工程总价  7520元

  4、操场  硬化面积约350平米 厚度0.01米

  ①材料及人工 45元/平米x350平米=15750元

  ②国旗台及旗杆  450元   国旗一面 60元

                                                              本项工程总价  16310元


  5、通电通水及其他未预见费用 含乒乓球台 洗手池 等控制在3000元内

                                                                  本项总价  3000元

  6、双人课桌椅 50套  180元x50=9000元

                                                                  本项总价  9000元


预算总价  138921元




我们都来做一点吧
顶部
gsjczzm (周老师)
新手上路
Rank: 1



UID 14
精华 0
积分 0
帖子 641
阅读权限 10
注册 2007-4-5
状态 离线
发表于 2011-8-25 11:24  资料 短消息 
签订建校协议


开工(8月14日拍)






[ 本帖最后由 gsjczzm 于 2011-8-14 19:45 编辑 ]




我们都来做一点吧
顶部
gsjczzm (周老师)
新手上路
Rank: 1



UID 14
精华 0
积分 0
帖子 641
阅读权限 10
注册 2007-4-5
状态 离线
发表于 2011-8-25 11:25  资料 短消息 
8-28现场进度照片:

主体地基已经完成,准备马上购进钢筋开始做地梁














这里的大山


路上遇到的孩子






[ 本帖最后由 gsjczzm 于 2011-8-25 11:32 编辑 ]




我们都来做一点吧
顶部
gsjczzm (周老师)
新手上路
Rank: 1



UID 14
精华 0
积分 0
帖子 641
阅读权限 10
注册 2007-4-5
状态 离线
发表于 2011-8-31 17:18  资料 短消息 
进度08-30






由于做地基时还没有买来钢筋,所以构造柱钢筋没有插进地基额外而是直接同地梁棒扎在一起






在工地上的水淹塘村村长


中心校校长和村干部在检查施工质量


右边第一人为村长,第二人为村支书,面对钢筋的是中心校校长




施工人员的工棚






贵州人吃饭时离不开辣椒








[ 本帖最后由 gsjczzm 于 2011-8-31 17:33 编辑 ]




我们都来做一点吧
顶部
gsjczzm (周老师)
新手上路
Rank: 1



UID 14
精华 0
积分 0
帖子 641
阅读权限 10
注册 2007-4-5
状态 离线
发表于 2011-9-9 10:11  资料 短消息 
9-09现场








[ 本帖最后由 gsjczzm 于 2011-9-9 10:14 编辑 ]




我们都来做一点吧
顶部
gsjczzm (周老师)
新手上路
Rank: 1



UID 14
精华 0
积分 0
帖子 641
阅读权限 10
注册 2007-4-5
状态 离线
发表于 2011-9-18 10:22  资料 短消息 
09-13  由于模板明天才能运进山来,这几天进度不明显,不过我们到旧校看望了正在上课的孩子们


从上面看大石头小学。旁边这块大石头前将修建水窖,保证孩子们喝水,校名也将醒目的写在水窖壁上




村长和支书几乎每天都到施工现场


这个旧水池将作为收集雨水的沉淀池,在从这里把干净水引到我们新修的水窖中,功孩子们饮用




孩子们还在旧学校上课、活动






在旧校上课的孩子们




李有华老师在辅导学生












真的祈望我们的新学校建好前危房不会伤到孩子们




孩子们现在喝水是从家里带来的


孩子们带到学校的午餐








旧校孩子们用的厕所,就是这样的厕所还得排队……




[ 本帖最后由 gsjczzm 于 2011-9-18 11:24 编辑 ]




我们都来做一点吧
顶部
gsjczzm (周老师)
新手上路
Rank: 1



UID 14
精华 0
积分 0
帖子 641
阅读权限 10
注册 2007-4-5
状态 离线
发表于 2011-9-26 20:06  资料 短消息 
09-26进度










[ 本帖最后由 gsjczzm 于 2011-9-26 20:08 编辑 ]




我们都来做一点吧
顶部
gsjczzm (周老师)
新手上路
Rank: 1



UID 14
精华 0
积分 0
帖子 641
阅读权限 10
注册 2007-4-5
状态 离线
发表于 2011-10-30 09:17  资料 短消息 
10-29现场照片


[ 本帖最后由 gsjczzm 于 2011-10-30 10:55 编辑 ]


图片附件: 10.JPG (2011-10-30 10:55, 116.49 K)



图片附件: 9.JPG (2011-10-30 10:55, 78.89 K)



图片附件: 8.JPG (2011-10-30 10:55, 116.67 K)



图片附件: 7.JPG (2011-10-30 10:55, 79.48 K)



图片附件: 6.JPG (2011-10-30 10:55, 79.05 K)



图片附件: 5.JPG (2011-10-30 10:55, 84.59 K)



图片附件: 4.JPG (2011-10-30 10:55, 149.95 K)



图片附件: 3.JPG (2011-10-30 10:55, 64.48 K)



图片附件: 2.JPG (2011-10-30 10:55, 80.61 K)



图片附件: 1.JPG (2011-10-30 10:55, 64.8 K)





我们都来做一点吧
顶部
 


当前时区 GMT+8, 现在时间是 2026-2-15 22:28
京ICP备07004120号

    本论坛支付平台由支付宝提供
携手打造安全诚信的交易社区 Powered by Discuz! 5.0.0  © 2001-2006 Comsenz Inc.
清除 Cookies - 联系我们 - 信天谨游 - Archiver