游客:
注册
|
登录
|
会员
|
统计
|
帮助
信天谨游
»
山村修路
» 83-84座桥:云南省宁蒗县新营盘乡新营盘村委会1-2桥-太长内详
‹‹ 上一主题
|
下一主题 ››
25
1/3
1
2
3
››
投票
交易
悬赏
活动
打印
|
推荐
|
订阅
|
收藏
标题: 83-84座桥:云南省宁蒗县新营盘乡新营盘村委会1-2桥-太长内详
信天谨游
管理员
UID 5
精华 0
积分 0
帖子 29924
阅读权限 200
注册 2007-4-3
状态 离线
#1
发表于 2021-3-16 18:02
资料
文集
短消息
83-84座桥:云南省宁蒗县新营盘乡新营盘村委会1-2桥-太长内详
云南省宁蒗县新营盘乡新营盘村委会1桥、2桥位于宁蒗县新营盘乡新营盘村委会新营盘下村的一条主路上,该村有农户105户,人口大约为556口,该村以汉族,彝族为主。这一路段水流不畅,涵洞较小,无法满足雨季水流较大时的通行条件。其中一座桥桥位于村子中心,有一半的中小学生要经过该桥。另一座桥位于主路下半段,全村大半农户的农田,耕地,都要经过,现在小涵洞无法满足雨季时候的通行条件,存在很大的安全隐患。希望能重新修建两座桥,谢谢。
其中:
新营盘村委会1桥修建预算为:18000元
新营盘村委会2桥修建预算为:38000元
两座桥合计费用:56000元。
(一)预算:
石头:12方*180元=2160元
沙子:13方*260元=3380元
钢筋:22○30根*115元=3450元
水泥:30吨*520元=1560元
木板、木方、撑杆合计:900元
人工:24个*200元=4800元
挖机挖基础和回填:1250元
木板、钢筋、水泥运费合计:500元
合计:18000元
(二)预算:
石头:40方*180元=7200元
沙子:25方*260元=6500元
钢筋:22○的70根*115元=8050元
水泥:7吨*520元=3640元
水泥运费:600元
木板、木方、撑杆合计:2600元
人工:33*200元=6600元
挖机挖基础+回填合计:2000元
运费:木板、钢筋:810元
合计:38000元
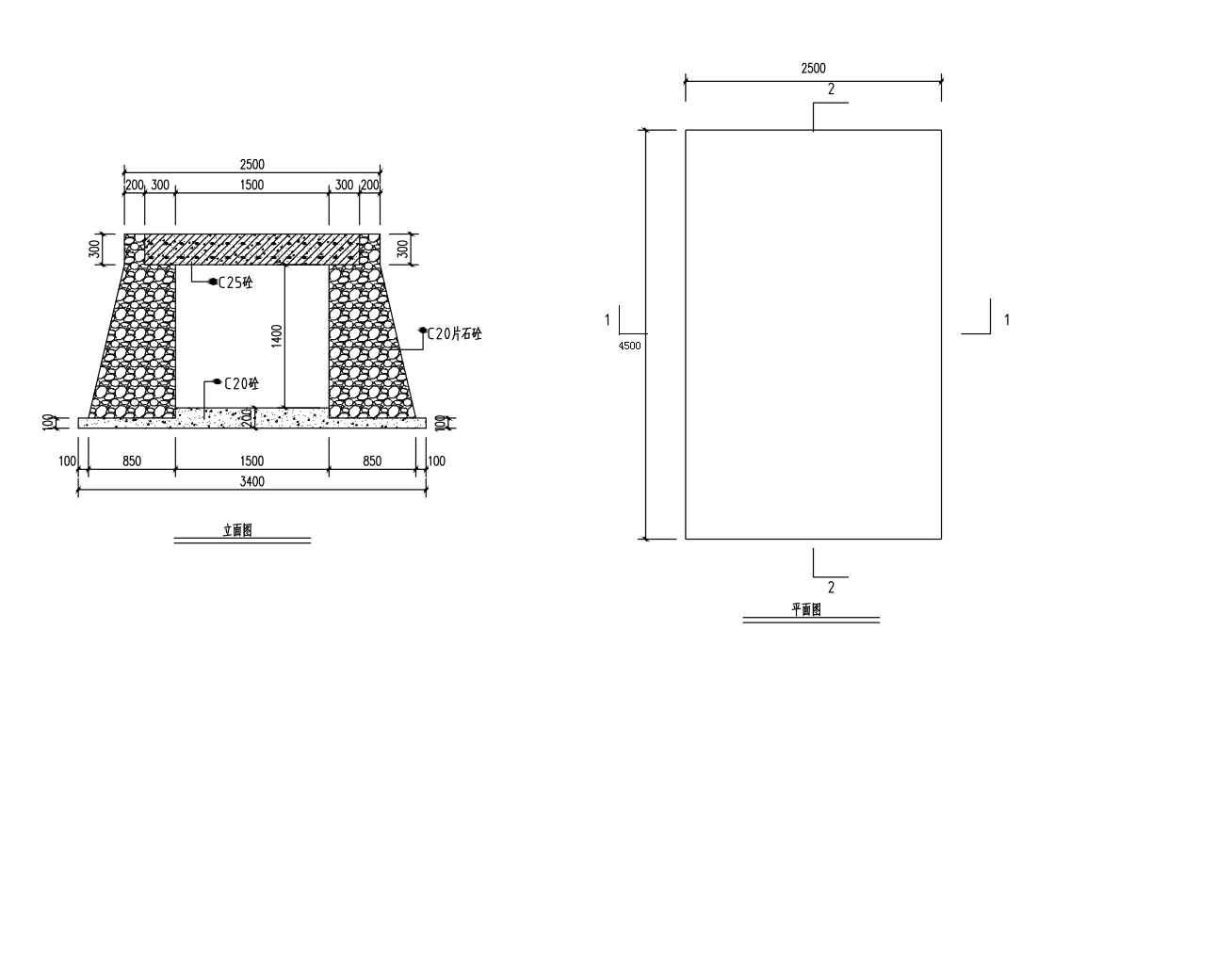
小桥施工方式:
桥墩为毛石混凝土
桥板为钢筋混凝土
捐款人:李永钦中国粉丝
桥名:永钦1桥-新营盘村1桥、永钦2桥-新营盘村2桥
信天谨游
管理员
UID 5
精华 0
积分 0
帖子 29924
阅读权限 200
注册 2007-4-3
状态 离线
#2
发表于 2021-3-16 18:12
资料
文集
短消息
小桥施工方式:
桥墩为毛石混凝土
桥板为钢筋混凝土
图片附件
:
33.png
(2021-3-16 18:12, 97.47 K)
图片附件
:
34.png
(2021-3-16 18:12, 84.83 K)
信天谨游
管理员
UID 5
精华 0
积分 0
帖子 29924
阅读权限 200
注册 2007-4-3
状态 离线
#3
发表于 2021-3-16 18:21
资料
文集
短消息
预留1.。
信天谨游
管理员
UID 5
精华 0
积分 0
帖子 29924
阅读权限 200
注册 2007-4-3
状态 离线
#4
发表于 2021-3-16 18:21
资料
文集
短消息
预留2.。
信天谨游
管理员
UID 5
精华 0
积分 0
帖子 29924
阅读权限 200
注册 2007-4-3
状态 离线
#5
发表于 2021-3-16 18:21
资料
文集
短消息
预留3.。
信天谨游
管理员
UID 5
精华 0
积分 0
帖子 29924
阅读权限 200
注册 2007-4-3
状态 离线
#6
发表于 2021-3-16 18:22
资料
文集
短消息
预留4.。
信天谨游
管理员
UID 5
精华 0
积分 0
帖子 29924
阅读权限 200
注册 2007-4-3
状态 离线
#7
发表于 2021-3-16 18:22
资料
文集
短消息
预留5.。
信天谨游
管理员
UID 5
精华 0
积分 0
帖子 29924
阅读权限 200
注册 2007-4-3
状态 离线
#8
发表于 2021-3-16 18:23
资料
文集
短消息
其中一座桥。
图片附件
:
11_副本.jpg
(2021-3-16 18:35, 202.07 K)
图片附件
:
12_副本.jpg
(2021-3-16 18:35, 184.75 K)
图片附件
:
13_副本.jpg
(2021-3-16 18:35, 198.97 K)
图片附件
:
14_副本.jpg
(2021-3-16 18:35, 196.72 K)
信天谨游
管理员
UID 5
精华 0
积分 0
帖子 29924
阅读权限 200
注册 2007-4-3
状态 离线
#9
发表于 2021-3-16 18:37
资料
文集
短消息
另一座桥
图片附件
:
21_副本.jpg
(2021-3-16 18:37, 250.9 K)
图片附件
:
22_副本.jpg
(2021-3-16 18:37, 228.22 K)
信天谨游
管理员
UID 5
精华 0
积分 0
帖子 29924
阅读权限 200
注册 2007-4-3
状态 离线
#10
发表于 2021-3-16 18:39
资料
文集
短消息
施工照片。
图片附件
:
111_副本.jpg
(2021-3-16 18:39, 199.2 K)
图片附件
:
112_副本.jpg
(2021-3-16 18:39, 226.19 K)
图片附件
:
113_副本.jpg
(2021-3-16 18:39, 184.64 K)
图片附件
:
114_副本.jpg
(2021-3-16 18:39, 273.64 K)
图片附件
:
115_副本.jpg
(2021-3-16 18:39, 195.05 K)
图片附件
:
116_副本.jpg
(2021-3-16 18:39, 175.88 K)
25
1/3
1
2
3
››
投票
交易
悬赏
活动
最近访问的论坛 ...
一对一资助
修建学校
信天谨游
信天谨游助学
> 修建学校
> 一对一资助
> 勘误表
> 山村修路
> 改善学生伙食
> 助学交流
> 待修建学校
> 预算勘误表
> 其它助学活动
> 走访资料
> 助学之友
> 学生园地
> 版务
当前时区 GMT+8, 现在时间是 2026-2-15 20:52
京ICP备07004120号
Powered by
Discuz!
5.0.0
© 2001-2006
Comsenz Inc.
TOP
清除 Cookies
-
联系我们
-
信天谨游
-
Archiver
控制面板首页
编辑个人资料
积分交易
公众用户组
好友列表
基本概况
论坛排行
主题排行
发帖排行
积分排行
在线时间
管理团队