游客:
注册
|
登录
|
会员
|
统计
|
帮助
信天谨游
»
山村修路
» 第61-63座桥:云南省宁蒗县翠玉乡牛窝子村三座桥(张志兰)
‹‹ 上一主题
|
下一主题 ››
20
1/2
1
2
››
投票
交易
悬赏
活动
打印
|
推荐
|
订阅
|
收藏
标题: 第61-63座桥:云南省宁蒗县翠玉乡牛窝子村三座桥(张志兰)
信天谨游
管理员
UID 5
精华 0
积分 0
帖子 29924
阅读权限 200
注册 2007-4-3
状态 离线
#1
发表于 2020-5-28 16:17
资料
文集
短消息
第61-63座桥:云南省宁蒗县翠玉乡牛窝子村三座桥(张志兰)
爱心人士张志兰捐助4座桥,其中1座桥位于翠玉乡村委会蔡家坪,另外就是这里的3座桥。每座桥按1.5万元计,4座桥共6万余,牛窝子3座桥共4.5万余。
毛细血管小桥的缘由:
(1)2019年9月12日,云南宁蒗县翠玉乡蔡家坪王家村路上小涵管堵塞,河水从路上漫过,由于水流太大,一名上学娃娃被河水冲倒,幸好被一名路过大人发现并救起。
(2)2019年8月以来,由于连续强降雨、上游泥沙冲击,蔡家坪村较大,有几个路段水流不畅,存在安全隐患,希望能修几座小桥。另外翠玉乡其他村也有一些类似这样的小桥,需要修建。
(3)2020年开始修建这样的小桥,在翠玉乡一个村、一个村开始修建。
修此3座桥简介:
云南省宁蒗县翠玉乡翠玉村委会牛窝子村,是个大村,具体分三个小村,即长坪村有31户、嘎左村有30户、牛窝子村有52户,共有113户人家,居住着汉族、藏族、普米族、彝族、摩梭人5个民族468人。其中在翠玉中心完小就读的学生有22人,在翠玉中学就读的有15人,都要经过这3座小桥。到了雨季,原来小桥位置处水流不畅,存在安全隐含,村民希望能帮他们修桥。
信天谨游
管理员
UID 5
精华 0
积分 0
帖子 29924
阅读权限 200
注册 2007-4-3
状态 离线
#2
发表于 2020-5-28 16:23
资料
文集
短消息
就是这样的毛细血管小桥,这样的小桥很多,下面是其中一座小孩过河小视频:
https://weibo.com/tv/v/ICNMaeYXn?fid=1034:4492476220899350
图片附件
:
115.jpg
(2020-5-28 16:25, 189.73 K)
信天谨游
管理员
UID 5
精华 0
积分 0
帖子 29924
阅读权限 200
注册 2007-4-3
状态 离线
#3
发表于 2020-5-28 16:27
资料
文集
短消息
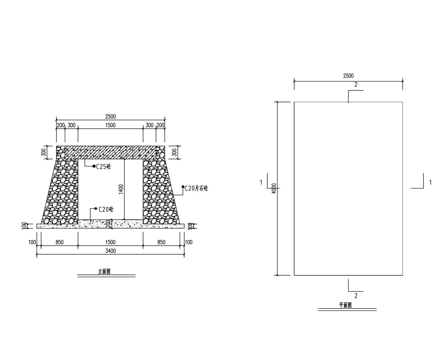
小桥预算:
桥墩用毛石混凝土,桥面用双层钢筋混凝土。
桥面:宽4.5米(同路宽),长3米;
桥洞:宽1.5米,高1.4米;
石料:13方*120元/方=1560元;
沙:12方*160元/方=1920元;
水泥:3.5吨*540元/吨=1890元
水泥运费:180元;
木板、撑杆、水平方:500元,
钢筋:3410元
主筋22圆2.5米长的27根*2层=54根
15根*110元=1650元
副筋22圆4米长的17根*2层=34根
16根*110元=1760元
钢筋间距15公分;
钢筋、施工工具运费:500元;
回填:500元
挖基础人工:1600元;
浇筑人工费:3600元;
合计:15660元
图片附件
:
QQ截图20200423220201.jpg
(2020-5-28 16:27, 90.27 K)
图片附件
:
QQ截图20200423220243.jpg
(2020-5-28 16:27, 82.2 K)
信天谨游
管理员
UID 5
精华 0
积分 0
帖子 29924
阅读权限 200
注册 2007-4-3
状态 离线
#4
发表于 2020-5-28 20:59
资料
文集
短消息
预留1.。
信天谨游
管理员
UID 5
精华 0
积分 0
帖子 29924
阅读权限 200
注册 2007-4-3
状态 离线
#5
发表于 2020-5-28 21:00
资料
文集
短消息
捐助修建协议书
图片附件
:
8.jpg
(2020-6-13 11:08, 364.56 K)
图片附件
:
9.jpg
(2020-6-13 11:08, 315.24 K)
信天谨游
管理员
UID 5
精华 0
积分 0
帖子 29924
阅读权限 200
注册 2007-4-3
状态 离线
#6
发表于 2020-5-28 21:00
资料
文集
短消息
结算说明
图片附件
:
10.jpg
(2020-6-13 11:09, 321.7 K)
信天谨游
管理员
UID 5
精华 0
积分 0
帖子 29924
阅读权限 200
注册 2007-4-3
状态 离线
#7
发表于 2020-5-28 21:00
资料
文集
短消息
竣工验收报告
图片附件
:
11.jpg
(2020-6-13 11:10, 328.09 K)
信天谨游
管理员
UID 5
精华 0
积分 0
帖子 29924
阅读权限 200
注册 2007-4-3
状态 离线
#8
发表于 2020-5-28 21:02
资料
文集
短消息
牛窝子修了3座小桥。
由于第1座桥放到最后修建,所以,先发第2座桥、第3座桥的照片。
因为下雨,第1座桥计划6月份修建。
信天谨游
管理员
UID 5
精华 0
积分 0
帖子 29924
阅读权限 200
注册 2007-4-3
状态 离线
#9
发表于 2020-5-28 21:04
资料
文集
短消息
牛窝子修了3座小桥。
由于第1座桥放到最后修建,所以,先发第2座桥、第3座桥的照片。
因为下雨,第1座桥计划6月份修建。
牛窝子第2座桥修建照片。
图片附件
:
813.jpg
(2020-5-28 21:04, 313.02 K)
信天谨游
管理员
UID 5
精华 0
积分 0
帖子 29924
阅读权限 200
注册 2007-4-3
状态 离线
#10
发表于 2020-5-28 21:04
资料
文集
短消息
牛窝子第2座桥修建照片。
图片附件
:
814_副本.jpg
(2020-5-28 21:04, 237.01 K)
图片附件
:
815_副本.jpg
(2020-5-28 21:04, 225.29 K)
图片附件
:
816_副本.jpg
(2020-5-28 21:04, 245 K)
20
1/2
1
2
››
投票
交易
悬赏
活动
最近访问的论坛 ...
走访资料
待修建学校
其它助学活动
一对一资助
助学交流
修建学校
改善学生伙食
学生园地
信天谨游
信天谨游助学
> 修建学校
> 一对一资助
> 勘误表
> 山村修路
> 改善学生伙食
> 助学交流
> 待修建学校
> 预算勘误表
> 其它助学活动
> 走访资料
> 助学之友
> 学生园地
> 版务
当前时区 GMT+8, 现在时间是 2026-2-15 20:53
京ICP备07004120号
Powered by
Discuz!
5.0.0
© 2001-2006
Comsenz Inc.
TOP
清除 Cookies
-
联系我们
-
信天谨游
-
Archiver
控制面板首页
编辑个人资料
积分交易
公众用户组
好友列表
基本概况
论坛排行
主题排行
发帖排行
积分排行
在线时间
管理团队